POUR TOUTE DEMANDE, JOINDRE LE 92.45.20
Votre habitat, dès 1.980.000 F
Vous offrir une habitation fiable et économique, c'est notre Engagement.
Pour un usage personnel, familial ou locatif (type AirBnB).




Nos Easy Home.
Avec une surface allant de 18m² à 54m², livrés avec cuisine et salle de bain équipées, nos Easy Home vous changeront la vie, et s'intégreront parfaitement sur votre propriété.




Excellent rapport qualité-prix
Armature en acier galvanisé, cuisine, salle de bain, isolation en polyuréthane. Rien n'est laissé au hasard.
Rapidité d'installation
En moins de 3 jours, votre Easy Home est montée entièrement, et sécurisée grâce aux pieux vissés.
Le trio gagnant.
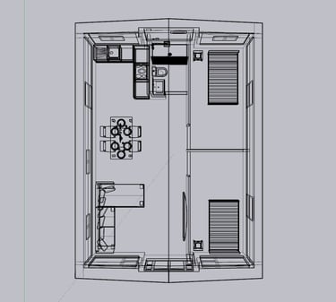
Bien se projeter, c'est essentiel. Avec un plan, c'est plus facile.
9.00m x 6.24m
Easy Home FAMILLE - 54 m²
Easy Home STANDARD - 36 m²
6.32m x 5.90m
Easy Home STUDIO - 18 m²
6.30m x 2.95m
Des finitions impeccables.
Chez Easyvis, la qualité de nos produits est primordiale. Vous proposer une habitation solide et à moindre coût, c'est (toujours) notre Engagement.




Quelles fondations pour mon Easy Home ? Nos vis, bien évidemment.
Fort de notre expérience dans la pose de vis de fondation, nous avons naturellement recours à ce système pour doter nos habitations de fondations surélevées et extrêmement solides, garantissant une meilleure isolation, et une protection accrue aux intempéries.


Nos chantiers en images.
Quelques photographies de nos travaux réalisés ces dernières années.
















Pour vos amis, vos enfants, vos économies.
Votre adolescent(e) souhaite gagner en autonomie, en intimité ?


Vous voulez héberger vos proches, mais vous manquez de place chez vous ?
Vous souhaitez vous lancer dans la location de courte durée, en investissant sans vous ruiner ?
Pour un prix inférieur à l'achat d'un véhicule neuf, nous vous proposons la solution idéale, qui répond à toutes vos problématiques. Et sans permis de construire.
" Merci à votre entreprise et votre équipe pour l'acquisition de ma Easy Home sur mon terrain, économique et efficace. "
Alexandre Evennou


★★★★★
Les retours de nos clients.
Contactez-nous.
Adresse
Rue Alphonse Médard, Dumbéa-sur-Mer
98835, Nouvelle-Calédonie
Contacts
92 45 20
easyvis@outlook.com
Nouvelle-Calédonie


SARL JL Associés au capital de 100 000 XPF
RIDET 1 567 056
© 2025. All rights reserved.
